HAUS DER MUSIK
Braunschweig

Mit dem Haus der Musik in Braunschweig entsteht ein neuer Ort für Musik, Bildung und der bürgerschaftlichen Begegnung in der Mitte der Stadt. Die Stadtgesellschaft wird um einen neuen Ort für kulturelle Begegnung und inklusiven Austausch bereichert.

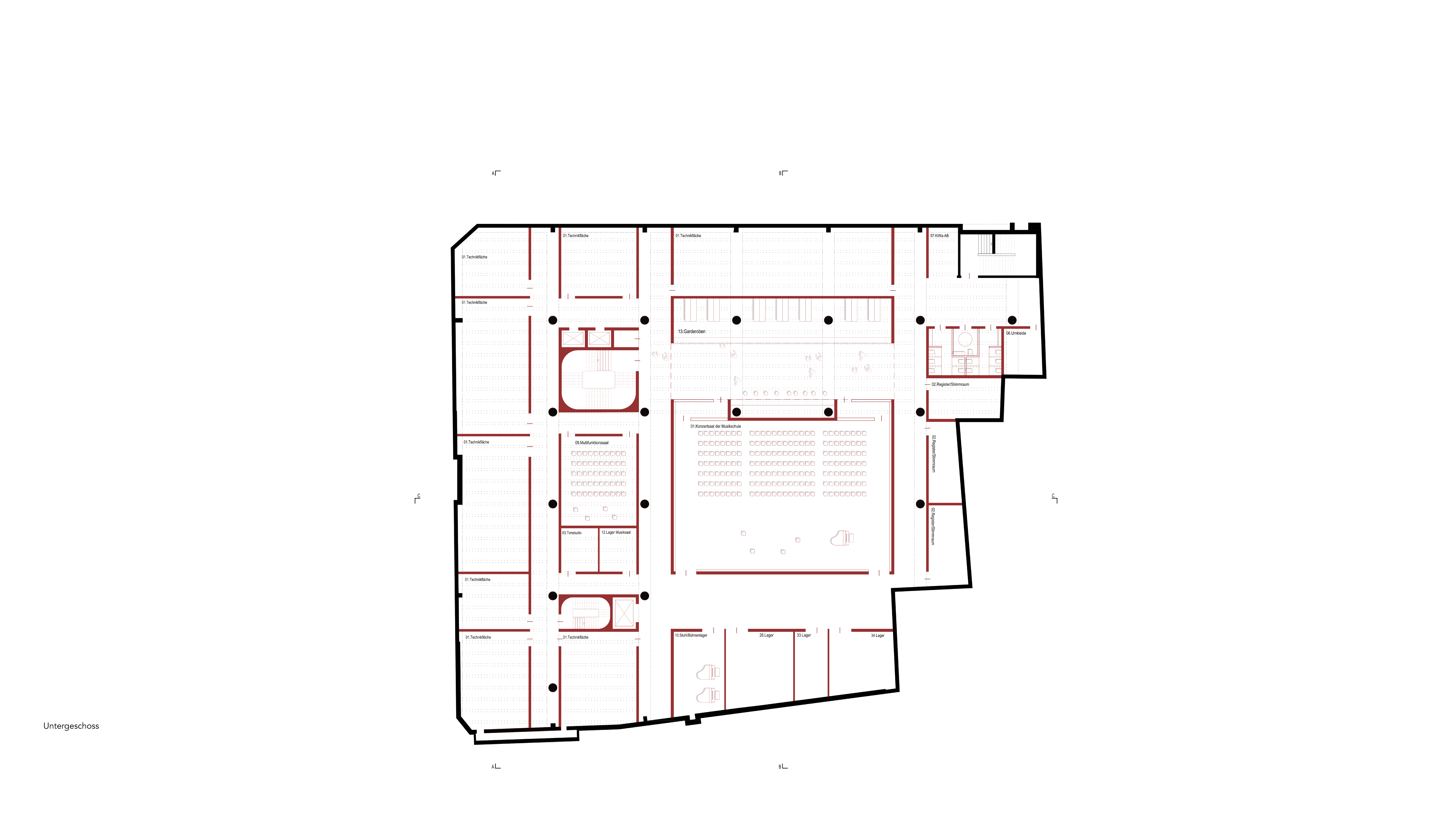
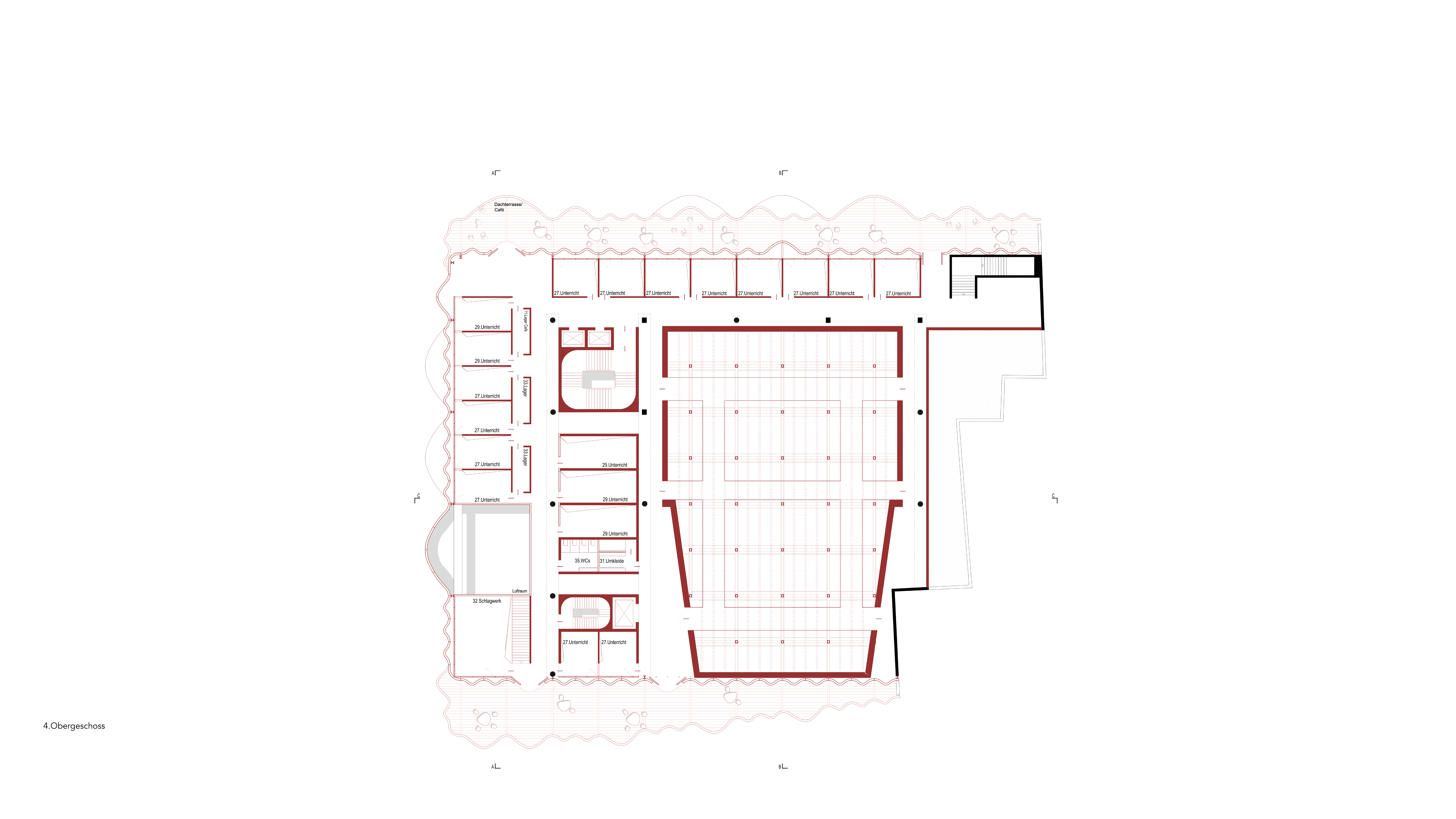
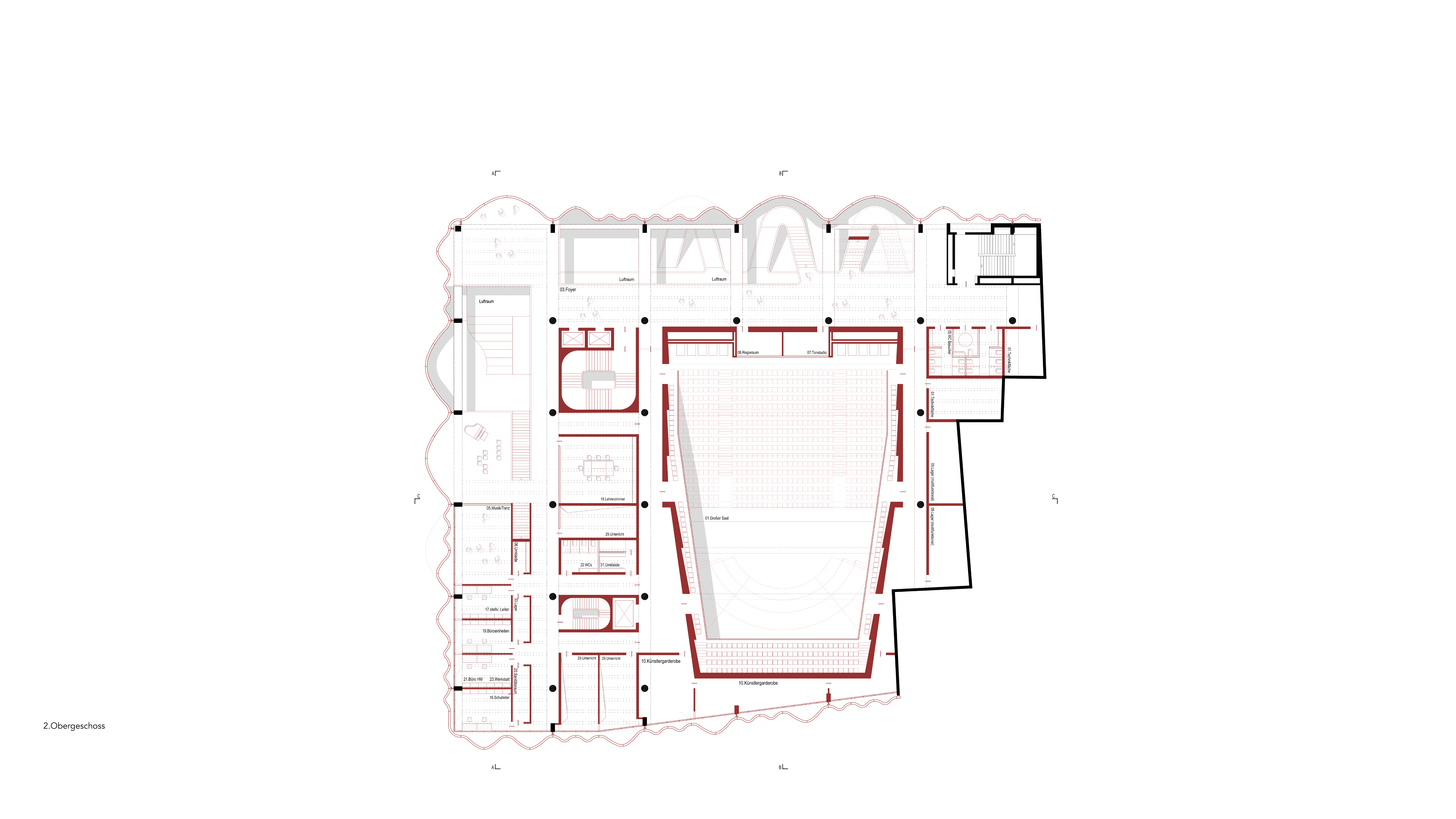
Bei der geplanten Umnutzung des vormaligen Kaufhauses ist die oberste Prämisse des Entwurfs, die bestehende Gebäudestruktur weitestmöglich zu erhalten, mit neuen Nutzungen zu reaktivieren und einen inklusiven Ort mit hohen Aufenthaltsqualitäten zu schaffen. Schallwellen der Musik stehen als Metapher für die plastische Gestaltung der Oberfläche der neuen, Identität stiftenden Fassade.

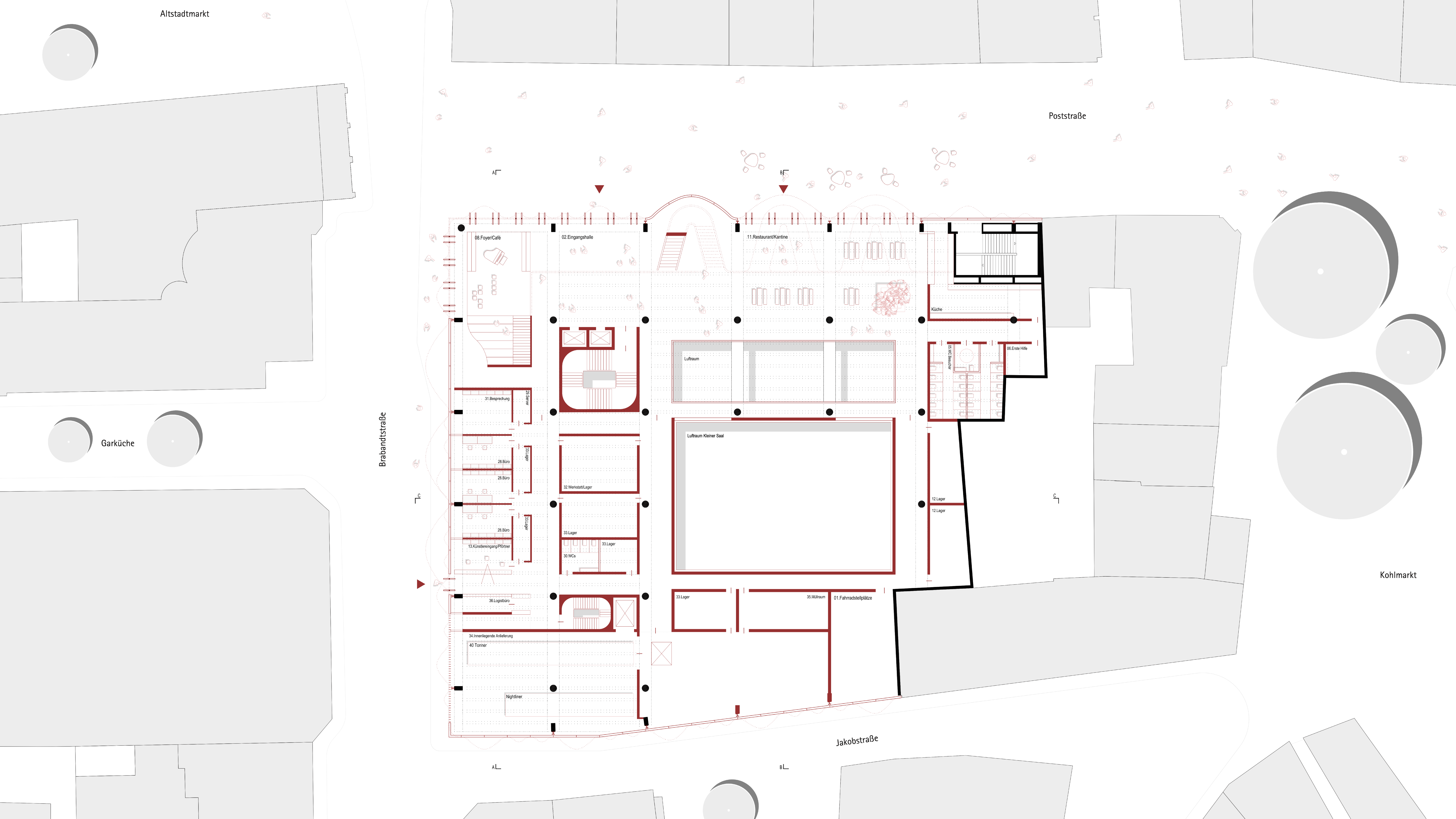
Entlang der frequentierten Poststraße sind die Zugänge für Publikum, Besucher, Schüler und Lehrende, ein Restaurant und eine szenische Fläche an der Ecke Poststraße Brabandtstraße verortet.

Über die großflächig offenbaren Fassaden im EG können die Grenzen zwischen dem Inneren des Gebäudes und dem angrenzenden Stadtraum verfließen. Die Aktivitäten im Haus der Musik wirken in den Stadtraum hinein, für die Stadtgesellschaft werden im neuen Haus Orte mit hoher Aufenthaltsqualität geboten. Der hohe Grad an Offenheit, Transparenz und niederschwelligen Möglichkeiten der Partizipation lassen in der Stadtmitte Braunschweigs einen überzeugenden Dritten Ort entstehen.

Zurück zur Übersicht Zu News